Umbau beim Schulzentrum sowie Aktuelles zur
Volksschulzusammenlegung & Kinderbetreuung
Eine Investition in die Zukunft
Nach den Präsentationen im Schulausschuss und im Gemeinderat dürfen wir einen ersten Blick auf die Planungen der neuen Volksschule geben. Es werden ab Sept. 2025 die Standorte Kollmitzberg und Stephanshart zu einem Standort in Ardagger Stift zu einer gemeinsamen 8klassigen Volksschule zusammengelegt. Das ist ein Projekt, das für Eltern, LehrerInnen und SchülerInnen deutliche Verbesserungen gegenüber dem Ist-Zustand bringen wird. Die Vorteile bei der schulinternen Organisation,bei der Kinderbetreuung und bei den Verkehrswegen sind mit der Zusammenführung auch zukünftig einen Standort bereits grundgelegt. Am Standort „Schulzentrum” haben wir auch unsere MusikschülerInnen, die bereits aktuell am Nachmittag in der Schule sind. Wir müssen noch damit rechnen, dass in den kommenden Jahren ein immer größerer Teil der Kinder am Nachmittag vor Ort sein wird, um betreut oder unterrichtet zu werden. Wir rechnen langfristig mit bis zur Hälfte der Kinder in der Volksschule und auch immer mehr Kinder in den anderen Schul- und Betreuungsformen, die am Nachmittag da sein könnten.
Was wird sich ändern?
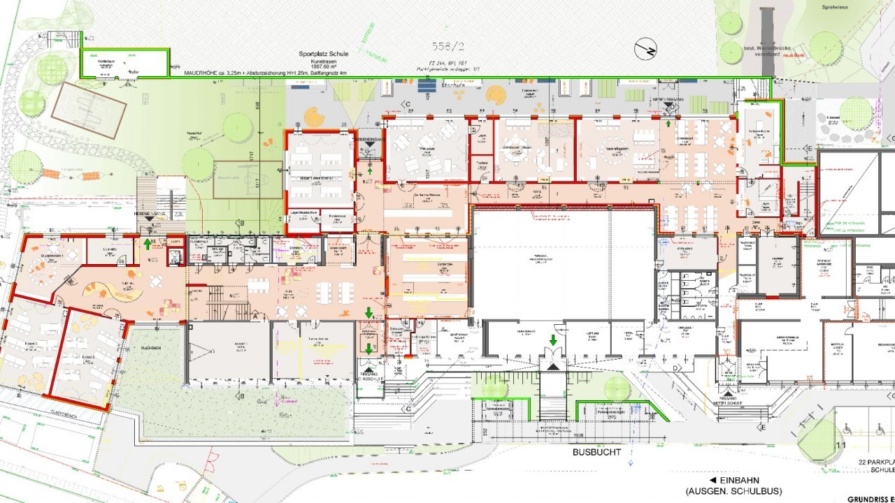
- Zunächst wird über dem Zwergerlgarten aufgestockt (2 Geschosse) und das ermöglicht insgesamt 8 Klassen inkl. Neben- und Gruppenräume.
- Zusätzlich zur Aufstockung wird hinter der bestehenden Volksschule dazugebaut. Dort entsteht eine „Reserveklasse“ eine Küche und Räume zur Mittagsverpflegung. Gleichzeitig wird der Zubau auch eine Gangverbindung zwischen der Volks- und Mittelschule ermöglichen. Weiters gibt es weitere Gruppenräume und verbesserte Möglichkeiten für die Nachmittagsbetreuung.
- Barrierefreiheit ist ein Grundprinzip der Planung und das bedeutet, dass eine Liftanlage eingebaut wird und mittels einer Brückenlösung auch ein ebenerdiger Ausgang in den Garten geschaffen wird.
- Die Aussenanlagen hinter der Schule werden durch optimale Planung noch mehr Möglichkeiten bieten: Ein eigener Spiel- und Aussenbereich für die Volksschule und die Fußballwiese bleibt in ausreichender Größe weiter erhalten.
- Die Planung stellt auf Kooperation und flexible Raumnutzung zwischen unterschiedlichen Nutzergruppen ab: Volksschule, Kinderbetreuung, Musikschule, Mittelschule und Nutzer der Turnsäle durch Vereine und Private.
- Natürlich werden auch LehrerInnen und Schulpersonal länger in der Schule sein, es wird zwischen Unterrichtseinheiten, wie wir das schon in der Mittelschule kennen, auch „Freistunden” geben.
- Der Aufwand wird auch für das Schulerhaltungspersonal (Schulwart und Reinigung) wird steigen.
- Ändert sich auch etwas beim An- und Abtransport?
- Vor der Schule wird mit einem überdachten Wartebereich der An- und Abtransport der Schüler bzw. das Warten optimiert.
- Eine neue Park- und Verkehrsordnung für die Eltern, die die Kinder selbst holen oder bringen, wurde bereits umgesetzt.
Was hieß das für die Planung?
- Offene Kommunikations- und Pausenzonen aber wiederum in Nischen werden aufgeteilt, dass trotz der großen Schülerzahlen wiederum Ruhebereiche und Rückzugszonen vorhanden sind.
- Ein zukünftig vielleicht längerer Aufenthalt in der Schule muss auch die Frage nach dem Essen oder sonstigen „körperlichen Erfordernissen” bedenken. Speziell für die Ausspeisung sind Räumlichkeiten geplant, wo eine Mittagsvollversorgung zukünftig, auch gemeinsam für die SchülerInnen der Mittelschule möglich ist.
- Die sonstigen körperlichen Erfordernisse - Hygiene und Bewegung - sind ein wichtiger Punkt. Vor allem auch die flexiblere Nutzung der Aussenräume zum „Abreagieren oder Zurückziehen können”. Auch die persönliche Hygiene werden bei längeren Betreuungszeiten ein großes Thema Schule.
- Die längere Anwesenheitszeit – speziell für Lehrerinnen und Lehrer – erfordert auch eigene Arbeitsplätze bzw. Büroarbeitsplatzlösungen. Das klassische „Lehrerzimmer”, wird in Zukunft anders ausschauen und zum „Großraumbüro” werden, das eigene „Arbeitsbereiche” für die einzelnen Personen vorsieht.
- Mit einbezogen ist hier neben der gesamten Volksschule auch eine weitere Betreuungsgruppe „Kleinkinder“ im Kindergarten und die notwendigen Neben- und Bewegungsräume, die ohnehin für die bestehenden provisorischen Gruppen und den Zwergerlgarten lt. Kindergartenkommission schon erforderlich waren.
Kurzvideo
Animation: Schulzentrum, Wohnhausanlage & Nahvorsorger
Wieviele Schülerinnen und Schüler? Aktuell betreuen wir in Ardagger ingesamt täglich am Vormittag ca. 530 Kinder – vom Zwergerlgarten (15) über die Kindergärten (156) bis zur Volksschule (170) und Mittelschule (189). Zusätzlich kommen dann in der Nachmittagsbetreuung von Schule (11) und Kindergarten (24) noch insgesamt 35 Kinder dazu.
Der Zeitplan:
- In den Gemeindegremien wurden die Planungen Ende Okt. beschlossen.
- Die behördlichen Genehmigungen und sonstige Bewilligung sind beim Land NÖ sind abgeschlossen.
- Ausschreibung und Beschlussfassung der Aufträge ist abgeschlossen.
- Bis Ende März 2025: Fertigstellung der Planung für den Buslinienverkehr von Stephanshart kommend
- Bis Ende April 2025: Planung Warteklassenangebot und sonstige Betreuungsangebote am Schulstandort
- Bis Juni 2025: Fertigstellung des Volkschulaufbaus und des Kindergartenzubaus, Beginn innerer Umbau: Direktion & Lehrerzimmer der Volksschule einschließlich Anschlussbereiche zu den Zubauten, Beginn innerer Umbau in der Mittelschule: Lehrerzimmer Mittelschule einschließlich Anschlüsse in die Stiegenhäuser
- Bis Juli | August 2025: Fertigstellung der Aussenanlagen und Spielbereiche
- Bis Ende August 2025: Gesamtfertigstellung inkl. vollständiger Einrichtung. Bezugsfertig wird der Zubau und die Aufstockung im Herbst 2025 sein und damit dann auch die Volksschulzusammenlegung vollzogen werden.
